Biens à vendre

Trévoux (01)

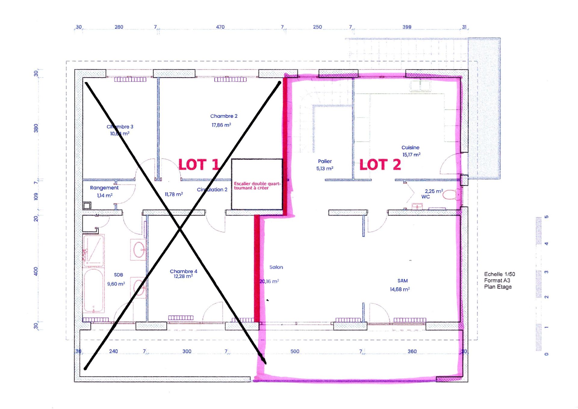
Trévoux – Plateau Lot 2 (329k€)

- 329000€

Référence 0774

Maison T4 à fort potentiel avec jardin

Nous vous proposons cette maison mitoyenne d’un côté, à finir d’aménager, offrant un potentiel d’environ 130m² habitables, bénéficiant d’un terrain d’environ 300m² avec deux places de stationnement.

La structure de la maison est en parfait état et a bénéficié de rénovations récentes: isolation par l’extérieur, remplacement des menuiseries et toiture suivie. Restent à prévoir l’installation d’un système de chauffage ainsi que le cloisonnement de l’espace nuit.

Au RDC: Un grand hall d’entrée, une salle d’eau avec WC, ainsi qu’un espace nuit offrant la possibilité d’aménager trois belles chambres.

A l’étage, la maison dispose d’une cuisine récente et équipée, d’un salon-séjour lumineux ouvrant sur la terrasse, d’un WC indépendant et d’un espace bureau.

Le jardin situé à l’arrière de la maison constitue un véritable atout, idéal pour des moments de détente et de convivialité.

Située dans un secteur calme de Trévoux, cette maison bénéficie d’un environnement agréable, à proximité des écoles et des commodités.

 

Maison vendue en plateau semi-fini

  • Surface habitable :

    130m²
  • Nbr de pièces :

    4
  • Nbr de chambres :

    3
  • Sanitaires :

    1
  • Nbr de toilettes :

    2
  • Extérieur :

    300m²
  • Stationnement :

    2

Informations complémentaires

Consommation (DPE - kWh/m².an)

A
B
C
D
E
F
G

Emission (GES - kg CO₂/m².an)

A
B
C
D
E
F
G

Vous avez un coup de coeur pour ce bien ?

Contactez-nous !

Le professionnalisme

Une équipe d'agents expérimentés, exerçant leurs métiers avec passion, sérieux et positivité.

Un service personnalisé

Forts de notre expérience, nous vous apportons des conseils sur-mesure et adaptés à votre situation.

La disponibilité

Notre équipe est à votre écoute et est disponible pour vous recevoir et vous conseiller avec bienveillance.

L'accompagnement

Nos agents vous accompagnent à chaque étape de votre projet. Appuyez-vous sur leur expertise.

opinion system logo